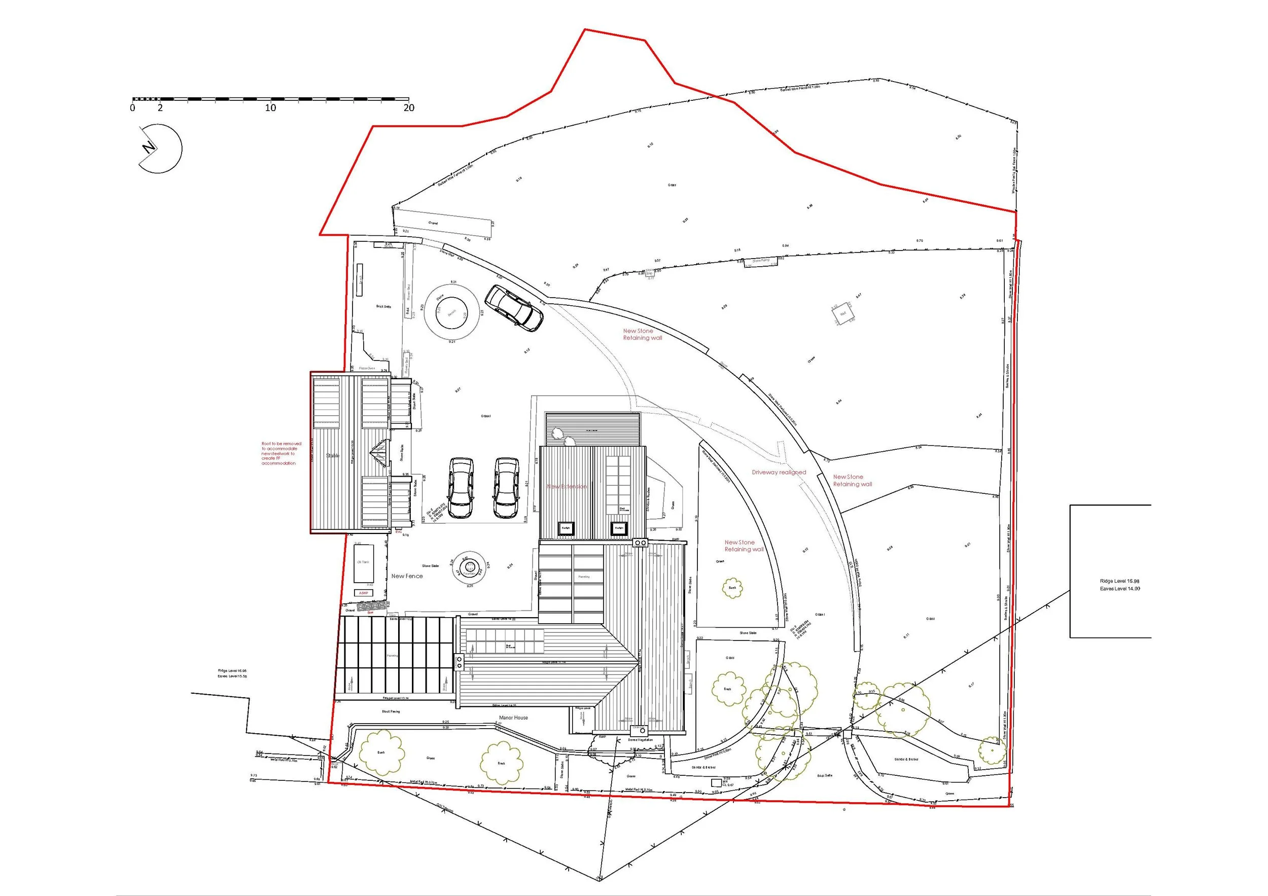
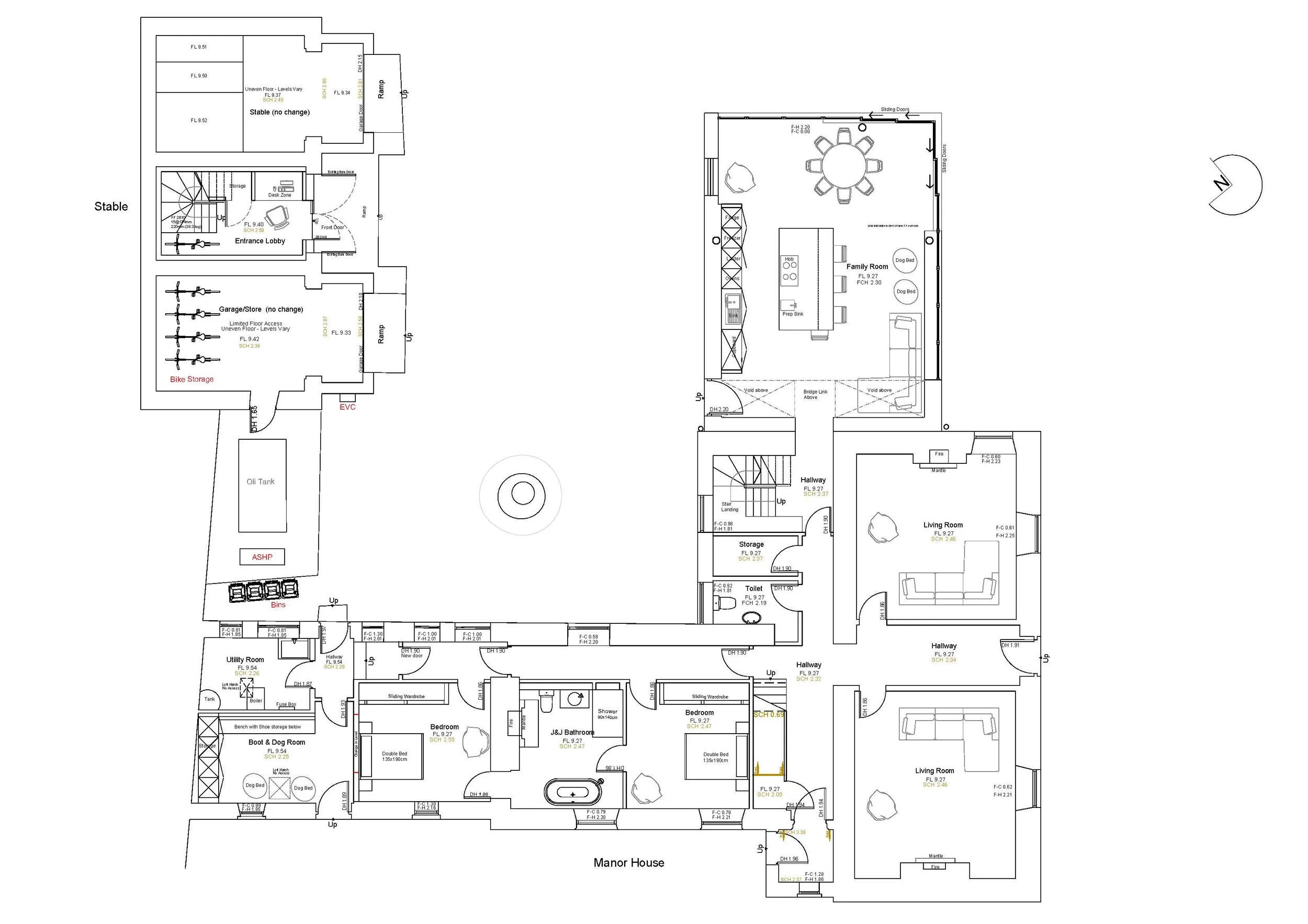
manor house cresswell
A substantial rear extension for a manor house in Northumberland’s AONB with a fabulous garden overlooking the North Sea.
The client wanted to maximise the sea views and relocate the existing kitchen and living room into the large extension, creating more space within the existing property for additional bedrooms.
The stable building was modernised to create an self-contained annex flat with views towards the sea and along Druridge Bay.
