tyne rowing club
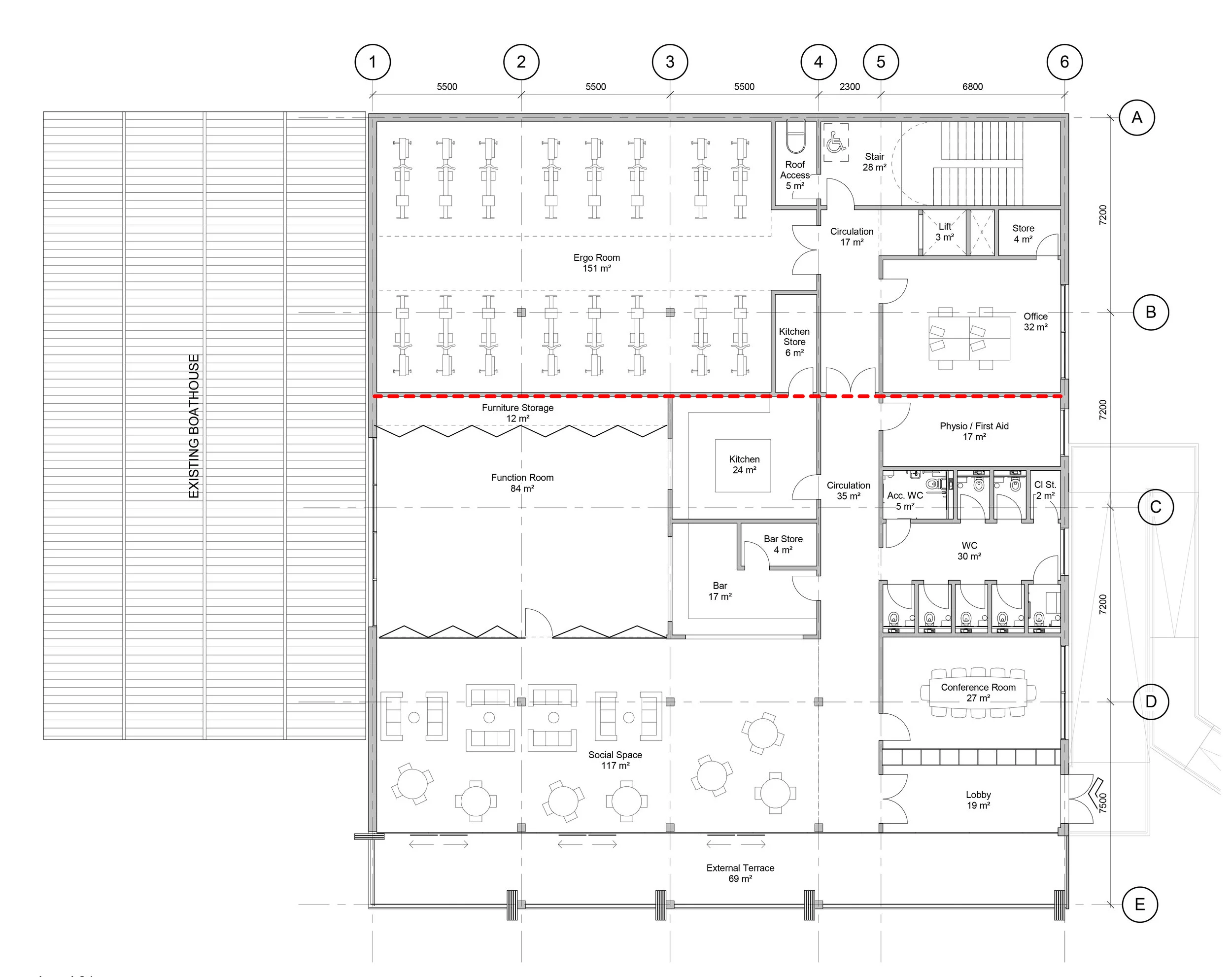
The client brief was to create a new club house in Newburn with first floor social facilities overlooking the River Tyne as well as a gym, storage and maintenance spaces for the clubs boat collection.
The completed building comprises of a large function room with kitchen and bar facilities, a separate dining/social zone as well as office and conference facilities and is connected to retained storage facilities.
The finished building is clad in a steel mesh, a poetic homage to the industrial history of the Tyne. This can be opened during the daytime, but closed off at night as a security measure due to the remote location of the site.
