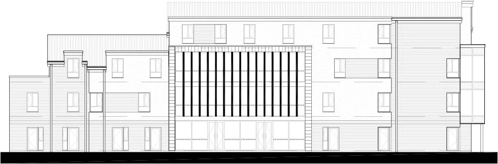
ashton court CARE HOME
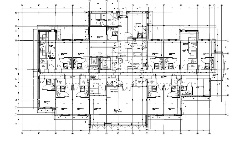
THAA Architects were commissioned by the Client Contractor to remodel the upper floors of the completed Ashton Court Care Home on the West Road in Newcastle.
The team liaised with Newcastle City Planners to address design concerns raised and discharge any planning conditions associated with the scheme.
THAA were responsible for the revised technical detailing of the upper floors and assisted the client with the associated site works.
The building was completed and opened in 2019.
